SIGNORILE, INDIPENDENTE, COMODA A NEGOZI E SERVIZI ! ! ! Cavagnolo, Torino

€ 295.000
SKU: CC8624
Property type: Ville
Area (M 2)
184
Rooms
5
Bedrooms
3
Bathrooms
2
Garages
1

The space

  • Classe energetica: D - 139,67 kWh/m2

Description

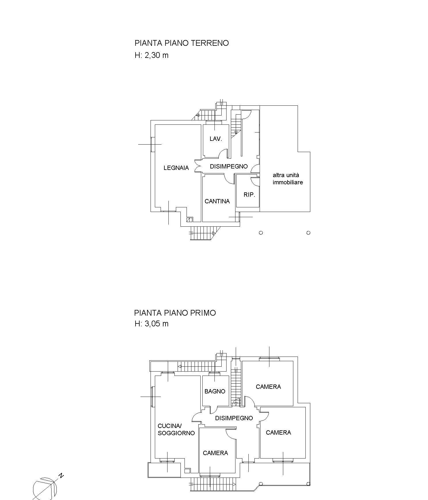
In verdeggiante contesto residenziale comodissimo al centro del paese, proponiamo in vendita villa indipendente sui quattro lati con ampia corte e giardino. Caratterizzata da un’eccezionale ariosità, sia nei suoi ambienti interni che esterni, si distingue per la sua posizione comoda ma riservata, dominante anche se in pianura. Elevata a due piani fuori terra collegati da comoda scala interna, sviluppa una superficie catastale totale di 184 mq: – al piano primo ingresso, disimpegno, grande soggiorno con cucina a vista, tre camere da letto, bagno, due balconi ed un terrazzo; – al piano terreno ingresso, tavernetta, disimpegno, bagno lavanderia ed altri locali pertinenziali. I due piani, oltre ad essere collegati internamente, sono accessibili indipendentemente l’uno dall’altro anche esternamente. Completa il fabbricato l’autorimessa doppia con accesso automatizzato, della superficie catastale totale di 37 mq, direttamente collegata ai locali abitativi. Riscaldamento autonomo con caldaia a metano e con termocamino a legna, infissi a taglio termico da poco installati, condizionatori. Bello e fruibile il giardino, ad oggi destinato anche in piccola parte ad orto, ideale per ospitare una piscina! Da vedere!

Contact the owner